Teton County Wyoming Housing Department Homepage
Search

Unit 306 Grove Phase 1, 250 Scott Lane

Phase 1

Unit 306: The Housing Department has a 2-bedroom, 2-bathroom unit available for rent, approximately 900 square feet, range, refrigerator, dishwasher, microwave, large deck, storage, and washer & dryer, NO PETS ALLOWED.

Monthly rental amount is $1,635.00. The rental term is estimated to begin April 2020

The monthly rental amount includes electricity, water, sewer, and trash. First month’s rent and security deposit ($3,270) will be due at signing. The security deposit amount is equal to one month’s rent.

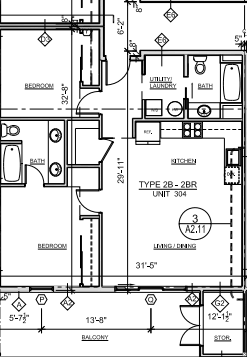
Floor Plan for 306

306

Occupancy Requirement: two or more people.

Income Range: 0% to 120% of the Median Family Income

Households that earn 0% to 120% of the Median Family Income for Teton County may enter the weighted drawing. That means to be eligible to enter the drawing for this rental, your household’s gross income (before taxes) must fit into the range listed below:

Two Person Household: $0 to $98,112

Three Person Household: $0 to $110,376

Four Person Household: $0 to $122,640

Five Person Household: $0 to $132,451

Calculation of Income:

Household income is based on the current income earned by all intended adult occupants of the rental unit at the time of weighted drawing using the current household income to estimate an annual (12 month) income basis. Households must use their current income and may not make changes or adjustments to earnings in order to fit within the income range.

Business income of a qualifying Household is calculated using an average of the last three (3) years of income on the business’ tax returns. A year to date profit and loss determination will also be used to calculate business income. If the business has not been operating for three (3) years, the Housing Department will average income over the time the business has been operating.

Eligibility Requirements:

Please read the policies in effect to enter any weighted drawing: Housing Department Rules & Regulations, Section 4: Weighted Drawing

Weighted Drawing Entry Eligibility Highlights:

The Housing Department Online Intake Form must be filled out and submitted to enter this or any drawing. If you have not submitted an Intake form prior to the beginning of this drawing (January 29th) you will not be eligible to apply.

At least one adult in the household must be employed full-time in Teton County for a minimum of one year. The Housing Department defines full-time employment as working a minimum of 1,560 hours per year (30 hours/week average).

Deadline to Apply: Tuesday, February 11th by 4:00 p.m. No late or incomplete entries will be accepted. If selected first for this unit you will be notified by phone. All others will be sent an email notice.

All forms need to enter into this weighted drawing are here, under "Rentals - Weighted Drawing Entry Forms".

We understand that our applications to enter into the weighted drawing take time and effort, and we do not want to disqualify you due to an oversight or misunderstanding about our process. Please bring your applications in prior to the due date so that we have time to work with you, make corrections, and give feedback if anything is wrong.

  1. Popular Pages

Contact Us

  1. Physical Address:

  2. 320 South King Street

  3. Jackson, WY 83001

  4. Directions

  5.  

  1. Phone: 307-732-0867

  2. Fax: 307-734-3864

  3.  

  4. P.O. Box 714

  5. Jackson, WY 83001

  1. Logo Housing White.png

About Us

  1. The Housing Department works to create health housing solutions so that our workforce can live, spend, and volunteer locally, maintaining the community character we all cherish.  Learn more about our mission by visiting our About page.

Government Websites by CivicPlus®
Arrow Left Arrow Right
Slideshow Left Arrow Slideshow Right Arrow